Gustav

Velkommen til Carlsbakken

Mit navn er Gustav. Jeg er din udlejningsagent på ejendommen. Er du nysgerrig, er jeg altid klar på en snak om vores boliger. 

Om lejemålet

  • Ejendom Carlsbakken
  • Sagsnummer 20-9814-1103
  • Etage 2
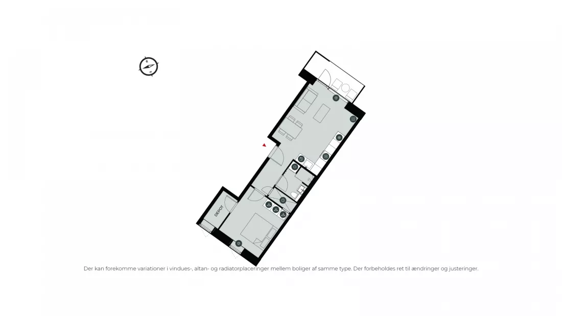
  • Antal værelser 2 værelser
  • Størrelse 66 m²
  • Overtagelse
  • Delevenlig Nej
  • Energimærke A2015
  • Husleje 10.700,-
  • Vand, a conto 450,-
  • Varme, a conto 350,-
  • Depositum 3 mdr. leje
  • Forudbetalt leje 1 mdr. leje
  • Bindingsperiode 12 mdr.
  • Samlet indflytningspris 54.300,-

Øvrige info om dette lejemål

  • Altan Ja
  • Fælles tagterrasse Ja
  • Fælles gård Ja
  • Legeplads i gården Ja
  • Opvaskemaskine Ja
  • Vaskemaskine Ja
  • Tørretumbler Ja

Roligt beliggende 2 værelses med altan

Lejligheden

Lejligheden fremstår lys og rummelig med åbent køkken, spiseplads og opholdsstue. Kvaliteten er i højsædet med matlakeret gulv i ask, hvidt køkken fra Invita, der er udstyret med det nyeste inden for hårde hvidevarer - alle fra Bosch Siemens i energiklasse A+. Badeværelset er stort nok til at rumme den travle familie og har indbygget gulvvarme til de køligere dage. På badeværelset finder du også en integreret energivenlig vaskesøjle fra Bosch Siemens. OBS: ønskes der mål af lejligheden skal du selv huske opmålings udstyr til fremvisning, da der ikke er mål på plantegningen.

NB: Billederne viser derfor ikke den pågældende lejlighed, men i stedet billeder fra prøveboligen. Billedernes formål er at give en fornemmelse af stil og materialevalg. Ift. planløsning henviser vi til plantegningen. Kontakt vores udlejningsteam, hvis boligen har interesse, eller book en fremvisning direkte her på lejemålet.

Ejendommen

Carlsbakken er tegnet af de prisvindende arkitekter Holscher Nordberg, der har skabt en moderne bygning med tre afrundede hjørner og varierende højder. Denne særlige designfeature - de runde, bløde hjørner – giver ejendommen et helt unikt og organisk udtryk. Bygningens forskellige højder skaber dynamiske facader, og sikrer også at der opnås størst muligt lysindfald i lejligheder og gårdarealer - samt en “solsikker” fælles tagterrasse. Den røde tegl har en stærk historisk reference til Hillerød og byens ikoniske bygninger. I Carlsbakken får du en bolig der reducerer miljøpåvirkningen ved at være en lavenergibyggeri. Tagfladen forsynes derudover med sedumbelægning, der foruden at være smukt også har til hensigt, at absorbere og forsinke store mængder regnvand. Ejendommens navn ”Carlsbakken” er opkaldt efter det skrånende terræn, der giver et spændende og varieret gårdrum, og danner en naturlig zoneinddeling med plads til både leg og ophold. Desuden giver det mulighed for cykelparkering i ejendommens grundniveau - uden trapper - så du nemt kan parkere din cykel eller ladcyklel i aflåst tørvejr.

Lokalområdet

Carlsbakken ligger i det gamle stationsområde centralt i Hillerød. Her parkeres bilerne ca. 100 meter fra ejendommen, da området bindes sammen af bilfri stræder, der kommer til at skabe hyggelige og trygge byrum med grønne pladser. Her bor du tæt på det hele, og med stationen helt tæt på, er du i København på under 40 minutter. Carlsbakken ligger desuden i gåafstand til flere gode daginstitutioner, folkeskoler, gymnasier samt op til flere videregående uddannelser. En 10 minutters cykeltur bringer dig i den ene retning til SlotsArkaderne, Frederiksborg Slot og Slotssøen. Cykler du 10 minutter den anden retning ender du midt i Store Dyrehave Skov, hvor man kan gå time lange ture i den vilde natur, opleve det rige dyreliv og finde ingredienser til den hjemmelavede hyldebærsaft eller brombærsyltetøjet.

  • Ledige lejemål
  • Alt udlejet
  • Nybyggeri

55.92975937, 12.31378179

Lokalområdet

  • Transport

    Busstop - 300m
    Hillerød st. - 700m
    Hillerød centrum - 1,5km
  • Shopping

    Rema1000 - 550m
    Netto - 700m
    SlotsArkaderne - 1,7km
  • Friluftsliv

    Teglgårdssøen - 800m
    Slotsparken - 800m
    Store Dyrehave - 1,9km
  • Underholdning

    Hillerød Bio - 1,1km
    Royal Stage - 1,6km
    Frederiksborg slot - 1,7km
  • Uddannelse

    UCC Hillerød - 100m
    Frederiksborg Skole - 150m
    Frederiksborg Gym - 550m
  • Institutioner

    Georgs Æske - 700m
    Margrethevej Vug. - 900m
    Oasen Børnehave - 850m
  • Sport

    Danseskole - 1,4km
    Svømmehal - 1,6km
    Sportsklub - 1,7km
  • Fitness

    Smiley Fitness - 400m
    Fitness World - 500m
    CrossFit Hillerød - 1,7km

Interesseret i en fremvisning?

Giv os mulighed for at kontakte dig

Snarest muligt
Danmark - +45
Du kan altid tilbagekalde dit samtykke, fx ved at benytte afmeldingslinket, som står i bunden af e-mails, som du modtager fra os.
Vi ønsker, at vores henvendelser er relevante for dig. Balder Danmark behandler derfor oplysninger om dig og de boliger, som du har udvist interesse for, til at målrette, hvad vi kontakter dig om. Du kan læse mere i vores persondatapolitik. Hvis du ikke ønsker, at vi foretager denne behandling, kan du let frabede dig behandlingen af personoplysninger til at målrette markedsføring ved at kontakte Balder på persondata@balder.dk.

127 drømmelejligheder. Skal Carlsbakken være dit nye hjem?

Udlejning 2025

Vores udlejningsteam sidder klar til at hjælpe dig mandag-torsdag 8:00-17:00 og fredag 8:00-16:00.

Kontakt os på telefon 55 55 07 07
eller e-mail udlejning@balder.dk

Lignende boliger